Bei leichter Verschmutzung. Ca. 400 ml Wasser und etwas Spülmittel in den Garraum stellen und Reinigungsprogramm auswählen. Das umweltfreundliche Reinigungssystem weicht eingebrannte Rückstände auf, sodass sie sich anschließend erheblich leichter abwischen lassen
Ausstattung:
- für Unterschrank ab 50 cm
- Farbe: Grönland (glänzend)
- Material: Keramik
Die besondere Widerstandsfähigkeit der KeraDomo-Küchenkeramik, als Schwesterprodukt der Laborkeramik, macht sie zum idealen Material für alle Bereiche, die extremen Ansprüchen gewachsen sein müssen. Die hohe Materialdichte und Belastbarkeit verdankt das bei über 1.200°C gebrannte Feinsteinzeug den Erfahrungen des Unternehmens als Anbieter für anspruchsvolle Laborausstattung
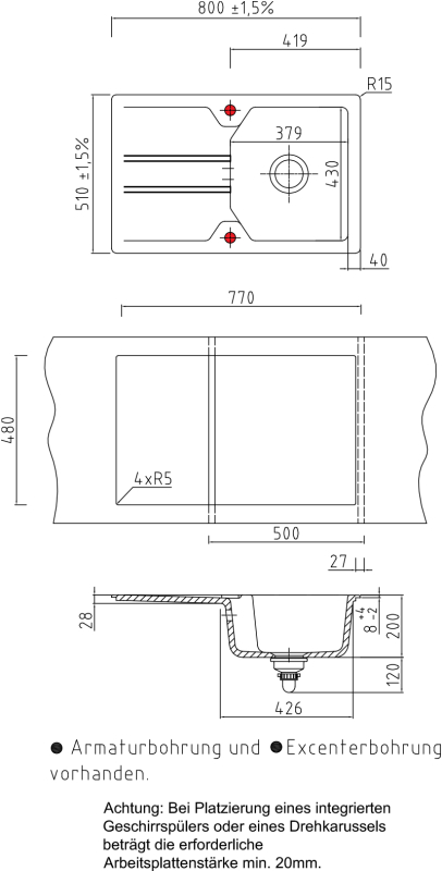
- 1 Becken
- reversibel
reversibel heißt: die Spüle läßt sich sowohl links als auch rechts herum einbauen; d. h. Sie können selbst entscheiden, ob Sie das Abtropfbecken auf der rechten oder auf der linken Seite haben möchten.
einbaubar, somit sowohl mit Becken links als auch Becken rechts einsetzbar
- diese Spüle ist nur als Einbau- bzw. Auflage-Spüle einbaubar; ein flächenbündiger Einbau oder der Einsatz als Unterbau-Spüle ist nicht möglich!
- Lochbohrung für Armatur vorhanden
- Lochbohrung für die Excenterbetätigung
Das Füllen und Ablaufen der Spüle wird über einen runden Drehknebel auf der Oberseite der Spüle vorgenommen. Dieser Knebel, Excenterbetätigung genannt, verschließt oder öffnet den Ablauf der Spüle, je nachdem in welche Richtung er gedreht wird. Der Griff in das Spülwasser entfällt somit.
vorhanden - Hohe Stoß-, Schlag- und Kratzfestigkeit
- Geschmacks- und geruchsneutral
- Chemikalienresistent gegen hausübliche Säuren und Laugen
- Hitze- und kältebeständig
- Lichtecht - kein Verblassen der Farben
- Ausschnittmaß in der APL: Breite 770 x Tiefe 480 mm
- Achtung: Bei integr. GS oder Dreh Karussell Mind.-APL-Stärke 20 mm
- Farbe: Fango (matt)
Im Lieferumfang enthalten:
- Ablaufgarnitur mit Excenterbetätigung und Drehgriff Edelstahl rund Ø 45 mm
- Eine eventuell abgebildete Armatur gehört nicht zum Lieferumfang.
Sonderzubehör (auswählbar):
- Auf Wunsch mit Oberflächenversiegelung CleanPlus (Aufpreis); Systemceram-CleanPlus
Kalk und Schmutz finden auf einer CleanPlus versiegelten Oberfläche keinen Halt. Werden alle Pflegehinweise beachtet, bleibt dieser besondere Oberflächenschutz lange erhalten. Zur Reinigung reichen Spülmittel, oder milde Essig- und Allzweckreiniger. Aggressive und scheuernde Reinigungsmittel können die CleanPlus-Eigenschaften zerstören und die Glasur zerkratzen.
* Angaben zur Herstellergarantie
Der Hersteller gewährt deutschlandweit 5 Jahre Garantie auf den gelieferten Artikel Systemceram KeraDomo Solva 80. Treten während dieses Zeitraums Material- oder Herstellungsfehler auf, gewährt der Hersteller im Rahmen der Garantie eine der folgenden Leistungen nach seiner Wahl:
• Reparatur des Artikels Systemceram KeraDomo Solva 80
• Austausch gegen einen gleichwertigen oder neuen Artikel Systemceram KeraDomo Solva 80 (ggf. auch ein Nachfolgemodell).
Bitte wenden Sie sich im Garantiefall an:
Systemceram GmbH & Co. KG
Berggarten 1
56427 Siersheim
Tel: +49 (0) 2623 / 600-10
Fax: +49 (0) 2623 / 600-790
Hinweis:
Ihre gesetzlichen Gewährleistungsrechte uns gegenüber bleiben hiervon unberührt. Ist die Kaufsache mangelhaft, können Sie sich daher in jedem Fall an uns halten, unabhängig davon, ob der Garantiefall eintritt und ob die Garantie in Anspruch genommen wird oder nicht.
Hinweis für Auslands- und Nachnahme-Bestellungen / Note for orders from other countries:
|
Artikelbezeichnung: systemceram GmbH & Co. KG
Berggarten 1
56427 Siershahn
Deutschland
Telefon: 02623/9283-0
E-Mail: info@systemceram.de
|
Dieses Produkt entspricht den Sicherheitsanforderungen der Produktsicherheitsverordnung vom 13. Dezember 2024. Es wurde gemäß den geltenden Sicherheitsstandards hergestellt und geprüft. Um die Sicherheit zu gewährleisten, bitten wir Sie, die folgenden Hinweise sorgfältig zu beachten:
- Gebrauchsanleitung: Lesen Sie die Gebrauchsanleitung vollständig durch, bevor Sie das Produkt verwenden. Bewahren Sie diese an einem sicheren Ort auf.
- Einsatzbereich: Verwenden Sie das Produkt ausschließlich für den vorgesehenen Zweck und im dafür vorgesehenen Umfeld.
- Kinder und Haustiere: Halten Sie das Produkt außerhalb der Reichweite von Kindern und Haustieren, sofern nicht anders angegeben.
- Wartung und Pflege: Führen Sie regelmäßige Wartungsarbeiten und Reinigungen gemäß den Anweisungen des Herstellers durch, um die ordnungsgemäße Funktion und Sicherheit des Produkts zu gewährleisten.
- Entsorgung: Entsorgen Sie das Produkt am Ende seiner Lebensdauer gemäß den örtlichen Vorschriften und Recyclingrichtlinien.
Haftungsausschluss: Der Hersteller übernimmt keine Haftung für Schäden, die durch unsachgemäße Verwendung oder Missachtung der Sicherheits- und Warnhinweise entstehen. Bei Fragen oder Unklarheiten zur Nutzung des Produkts kontaktieren Sie uns bitte.







