Bei leichter Verschmutzung. Ca. 400 ml Wasser und etwas Spülmittel in den Garraum stellen und Reinigungsprogramm auswählen. Das umweltfreundliche Reinigungssystem weicht eingebrannte Rückstände auf, sodass sie sich anschließend erheblich leichter abwischen lassen
Besonderheiten:
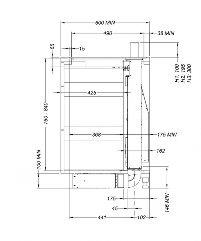
- Direkte Absaugung an der Quelle, dank einstellbarer Höhe: 10 cm, 20 cm, 30 cm
- Voreingestellte Automatikfunktion
- Semi-transparanter Lüftungsschirm verschwindet unsichtbar im Kochfeld
- Mit neuester Induktionstechnologie ausgestattet
- Diskretes und elegantes Design
- Wartungsfreundlich
- Installation auf der Arbeitsfläche und bündige Installation möglich
Funktionen Muldenlüfter:
- Motor Integriert
- Anzahl der Motoren 3
- Voreingestellte Preset-Funktion
- Manuelle Absaugfunktion
- Anzahl Leistungsstufen 5+ 3 intensiv
- Laufzeit-Timer Umluft (min.) / Austritt nach außen (min.) 10-30 (Standardeinstellung)
- Sättigungsanzeige für Fettfilter
- Sättigungsanzeige/Austauschanzeige für Umluft-Filter
- Verriegelung (Kindersicherung) Dunsthaube
- Absaughöhe Turm (cm) 10, 20, 30
- Absaughöhe Turm frei einstelbar
- Auffangbehälter 2 oben, 2 unten
Funktionen Induktionskochfeld:
- Bedienung Slider Touch-Bedienung
- Farbe der Funktionen Weiß
- Runde Glaskante
- Auflage / Flächenbündig
- Schwarzes opakes Glas
- Anzahl Leistungsstufen je Zone 9 + Power + Super Power
- Automatische Topferkennung
- Flex Zonen (2×)
- Automatische Brückenfunktion Flex Zonen
- Manuelle Brückenfunktion Flex Zonen
- Stop & Go
- Verriegelung (Kindersicherung) Kochfeld
- Timer
- Koch-Timer
- Ankochautomatik
- Warmhaltefunktion 70°
- Grillfunktion
Technische Informationen Induktions-Kochfeld:
- Kochzone 1 Links, Abmessungen (mm) / Power(Boost) W 200 x 240 / 2100 (3000)
- Kochzone 2 Links zentral, Abmessungen (mm) / Power(Boost) W 200 x 240 / 2100 (3000)
- Kochzone 3 zentral, Abmessungen (mm) / Power(Boost) W Ø 280 / 2100 (3000)
- Kochzone 4 Rechts zentral, Abmessungen (mm) / Power(Boost) W 240×200 / 2100 (3000)
- Kochzone 5 Rechts, Abmessungen (mm) / Power(Boost) W 240×200 / 2100 (3000)
Technische Eigenschaften:
- 2 Integrierte Motoren
- Motorleistung freiblasend (m³/h) 1530
- Motorleistung Abluft max. Powerstufe (m³/h) (Qboost) 1051,4
- Schallleistungspegel Abluft max. Powerstufe (dB(A)) (LWAboost) 71
- Schallleistungspegel Abluft min Stufe (dB(A)) (LWAmin) 41
- Durchmesser Abluftstutzen (mm) 222 x 89
- Position Abluftstutzen Links
- Gewicht Abzugshaube / Motorgehäuse (kg) 56,4
- Elektrischer Anschlusswert (W) 10400
- Anschlussspannung Abzugshaube 230 V
- Anschlussspannung Kochfeld 230 V / 400 V - 1N / 2N / 3N
- Energieeffizienzklasse (EEIDunsthaube) B
- Jährlicher Energieverbrauch (kWh/Jahr) (AECDunsthaube) 78,2
- Lüfter-Effizienzklasse (FDEDunsthaube) B
- Fettfilter-Effizienzklasse (GFEDunsthaube) C
- Abmessungen Kochfeld (B×T×H) 1180×520×65
- Abmessungen Dunsthaube (B×T×H) 1100×162×760–840
- Auslassposition Zentral unten (hinten/ vorne)
Im Lieferumfang enthalten:
-
Metallfettfilter, spülmaschinengeeignet
-
Montagematerial
-
Montageanleitung
* Angaben zur Herstellergarantie
Der Hersteller gewährt deutschlandweit 5 Jahre Garantie auf den gelieferten Artikel Novy Panorama Pro 42120 Muldenlüfter. Treten während dieses Zeitraums Material- oder Herstellungsfehler auf, gewährt der Hersteller im Rahmen der Garantie eine der folgenden Leistungen nach seiner Wahl:
- Reparatur des Artikels Novy Panorama Pro 42120 Muldenlüfter, oder
- Austausch gegen einen gleichwertigen oder neuen Artikel Novy Panorama Pro 42120 Muldenlüfter (ggf. auch ein Nachfolgemodell)
NOVY GmbH
Frankenring 18
30855 Langenhagen
Deutschland
Tel. +49 (0)511 / 5420771
Fax +49 (0)511 / 5420772
info@novy-dunsthauben.de
Hinweis:
Ihre gesetzlichen Gewährleistungsrechte uns gegenüber bleiben hiervon unberührt. Ist die Kaufsache mangelhaft, können Sie sich daher in jedem Fall an uns halten, unabhängig davon, ob der Garantiefall eintritt und ob die Garantie in Anspruch genommen wird oder nicht.


|
Artikelbezeichnung: Novy GmbH
Kampsriede 6a
D-30659 Hannover
Deutschland
Telefon: +49 511 5420771
E-Mail: info.de@novy.com
|
Dieses Produkt entspricht den Sicherheitsanforderungen der Produktsicherheitsverordnung vom 13. Dezember 2024. Es wurde gemäß den geltenden Sicherheitsstandards hergestellt und geprüft. Um die Sicherheit zu gewährleisten, bitten wir Sie, die folgenden Hinweise sorgfältig zu beachten:
- Gebrauchsanleitung: Lesen Sie die Gebrauchsanleitung vollständig durch, bevor Sie das Produkt verwenden. Bewahren Sie diese an einem sicheren Ort auf.
- Einsatzbereich: Verwenden Sie das Produkt ausschließlich für den vorgesehenen Zweck und im dafür vorgesehenen Umfeld.
- Kinder und Haustiere: Halten Sie das Produkt außerhalb der Reichweite von Kindern und Haustieren, sofern nicht anders angegeben.
- Wartung und Pflege: Führen Sie regelmäßige Wartungsarbeiten und Reinigungen gemäß den Anweisungen des Herstellers durch, um die ordnungsgemäße Funktion und Sicherheit des Produkts zu gewährleisten.
- Entsorgung: Entsorgen Sie das Produkt am Ende seiner Lebensdauer gemäß den örtlichen Vorschriften und Recyclingrichtlinien.
Haftungsausschluss: Der Hersteller übernimmt keine Haftung für Schäden, die durch unsachgemäße Verwendung oder Missachtung der Sicherheits- und Warnhinweise entstehen. Bei Fragen oder Unklarheiten zur Nutzung des Produkts kontaktieren Sie uns bitte.









